mail
info@factory-johor.com
phone_iphone
+6013-713 6222
search
Home
About Tech Real Estate
Projects
Factory Listing
Johor Bahru City Centre
Nusajaya
Western Gate Development
Eastern Gate Development
Senai - Skudai
Iskandar Zone Map
Our Services
FAQs
Contact Us
Land Listing
i-Park SAC @ Senai
We are real estate agents who can assist you in finding the perfect address for your business.
Sale Properties »
Rent Properties »
Factory Listing
Johor Bahru City Centre
Nusajaya
Western Gate Development
Eastern Gate Development
Senai - Skudai
Iskandar Zone Map
Iskandar Region, Johor Bahru has been gaining attention worldwide due to its strategic location to Singapore.
More Detail >>
Factory for Sale in Johor Bahru
Factory for Rent in Johor Bahru
Lesley Siang
Senior Property Consultant
Call / Whatsapp
+6013 713 6222
+6012 766 7738
Email
lesleysiang96@gmail.com
PEA
2429
Company
Tech Real Estate Sdn Bhd
Western Gate Development
Back to Listing
|
Western Gate Development
>
Detached Factory for Sale [-10%+10%(early bird till end of April 2019 )BUA: 4.8k]
Detached Factory for Sale [-10%+10%(early bird till end of April 2019 )BUA: 4.8k]
RCC9
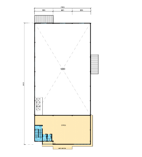
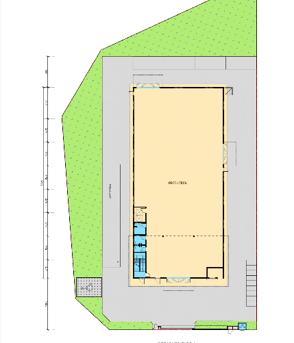
Type of Factory: Detached
Land use: Industry
Land size: 12,800.01 sqft
Built-up Area : 4,843.80 sqft
Selling Price : RM1,727,730.00 (RM357 psf) (After Discount 10%)
Whatsapp Me
RCC9
|
RCC9
|
RCC9
|
RCC9
|
RCC9
Share to Friends
Ask
Factory Johor
Description
Type of Factory
Detached
Land use
Industry
Land size
12,800.01 sqft
Built-up Area
4,843.80 sqft
Selling price
RM1,727,730.00 (RM357 psf) (After Discount 10%)
*Brand New Unit
*Additional 10% discount for Early Bird till End of April 2019