mail
info@factory-johor.com
phone_iphone
+6013-713 6222
search
Home
About Tech Real Estate
Projects
Factory Listing
Johor Bahru City Centre
Nusajaya
Western Gate Development
Eastern Gate Development
Senai - Skudai
Iskandar Zone Map
Our Services
FAQs
Contact Us
Land Listing
i-Park SAC @ Senai
We are real estate agents who can assist you in finding the perfect address for your business.
Sale Properties »
Rent Properties »
Factory Listing
Johor Bahru City Centre
Nusajaya
Western Gate Development
Eastern Gate Development
Senai - Skudai
Iskandar Zone Map
Iskandar Region, Johor Bahru has been gaining attention worldwide due to its strategic location to Singapore.
More Detail >>
Factory for Sale in Johor Bahru
Factory for Rent in Johor Bahru
Lesley Siang
Senior Property Consultant
Call / Whatsapp
+6013 713 6222
+6012 766 7738
Email
lesleysiang96@gmail.com
PEA
2429
Company
Tech Real Estate Sdn Bhd
Western Gate Development
Back to Listing
|
Western Gate Development
>
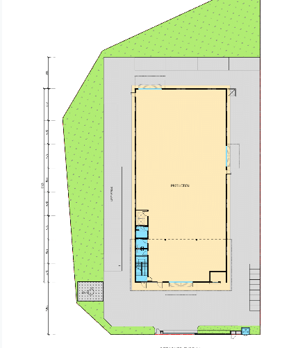
Bungalow Detached Factory for Sale [-10%+10%(early bird till end of April 2019) BUA: 8.7K]
Bungalow Detached Factory for Sale [-10%+10%(early bird till end of April 2019) BUA: 8.7K]
RCC5
Type of Factory: Bungalow Detached
Land use: Industry
Land Area : 22,976.51 sqft
Built-up Area : 8,729.60 sqft
Selling Price : RM2,877,120.00 (RM330 psf) (After Discount 10%)
Whatsapp Me
RCC5
|
RCC5
|
RCC5
|
RCC5
|
RCC5
Share to Friends
Ask
Factory Johor
Description
Type of Factory
Bungalow Detached
Land use
Industry
Land Area
22,976.51 sqft
Built-up Area
8,729.60 sqft
Selling Price
RM2,877,120.00 (RM330 psf) (After Discount 10%)
*Brand New Unit
*Additional 10% discount for Early Bird till end of April 2019