factory johor logo   i-Park SAC @ Senai   We are real estate agents who can assist you in finding the perfect address for your business.  
 
  Iskandar Zone Map  
 
Iskandar Region, Johor Bahru has been gaining attention worldwide due to its strategic location to Singapore.
 
More Detail >>
 
iskandar map
Factory for Sale in Johor Bahru
Factory for Rent in Johor Bahru
 
lesley
     
Lesley Siang
Senior Property Consultant
 
Call / Whatsapp
Whatsapp at +6013 713 6222 +6013 713 6222
Whatsapp at +6012 766 7738 +6012 766 7738
 
Email
lesleysiang96@gmail.com
 
PEA
2429
 
Company
Tech Real Estate Sdn Bhd
 
 

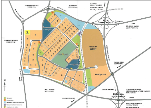
Nusajaya

Back to Listing | Nusajaya > Factory at Nusajaya (BUA: 60k sqft)
Factory at Nusajaya (BUA: 60k sqft)

Factory at Nusajaya (BUA: 60k sqft)

F41
Type of Factory : Detached Factory
Land use : Industry
Land size : 3.0 Acres
Built-up Area: 59,804.78 sqft

Selling price: RM30,000,000.00
Rental price: RM100,000.00 / month
Whatsapp Me
F41 | F41 | F41

Description

Type of Factory Detached Factory
Land use  Industry
Tenure Freehold
Land size 3.0 Acres
Built-up Area 59,804.78 sqft
Power supply 1,000 Ampere
 
Rental price RM100,000.00 / month
Selling price RM30,000,000.00

 

Contact us for Factory in Johor Bahru 
新山工厂出售出租、货仓、仓库、工业地,请联系

+6013-713 6222 (Ms Lesley Siang)
We support these regions for Factory, Warehouse, and Industrial Land.
新山工厂出售出租

Pasir GudangKulaiSenaiTampoiNusajayaTebrauKempasDesa CemerlangUlu TiramTanjung LangsatTanjung PelepasPontianMasaiPlentongSungai TiramPekan Nenas.